Main Content

$4,898,000 - 4125 Burkehill Place
4125 Burkehill Place Bayridge, West Vancouver, BC
Beds: 3
Baths: 4
Lot Size: 121’ Approx. 13,068 Sq.Ft. x 117’
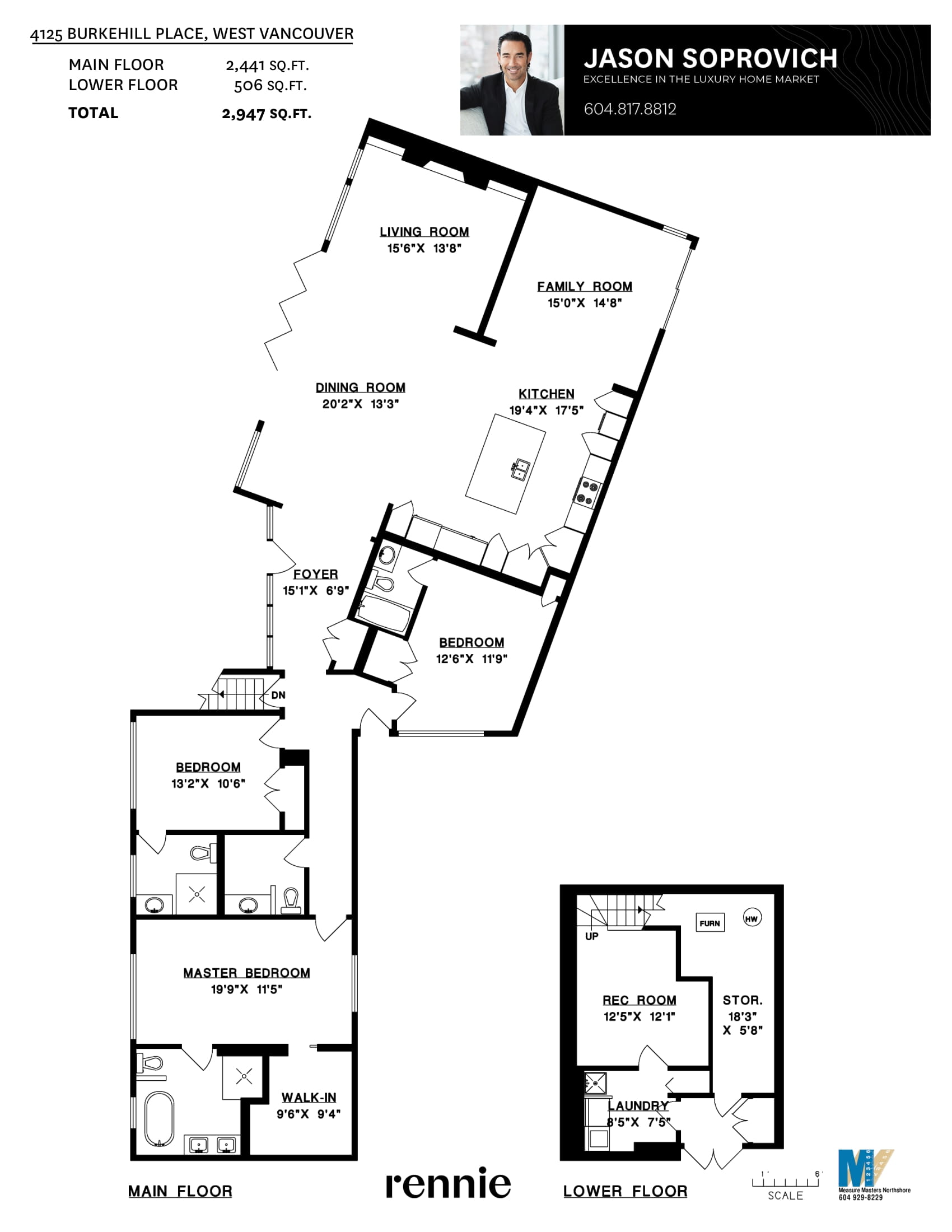
Floor Area: Approx. 2,947 Sq.Ft.
Price $4,898,000

Property Description

Beds: 3
Baths: 4

Spectacular remodelled residence originally built by “Bob Lewis”with breathtaking ocean and city views from Lion’s Gate Bridge to Vancouver Island. This beautiful residence is situated on a gorgeous sun-filled property offering over 120’ feet of frontage with a gentle sloping driveway.

Features include a sprawling open floor plan, mainly on one level, spacious living and dining areas with eclipse window systems & high ceilings, a stunning custom kitchen with large centre island, breakfast bar and top-of-the-line appliances, an adjacent family room, 3 bedrooms including an over-sized Master with spa-like ensuite and walk-in closet as well as an elegant powder room, all leading out to a fabulous 2,500 sq.ft. south-facing patio and heated swimming pool, complete with outdoor entertainment kitchen equipped with BBQ center, change rooms and bathroom. The lower level features a recreation room, laundry & storage.

Located on a quiet cul-de-sac, in the coveted West Bay "IB" School Catchment, this magnificent home is minutes to all of West Vancouver’s finest amenities.

Skip to content