Main Content

- 3631 McKechnie Avenue
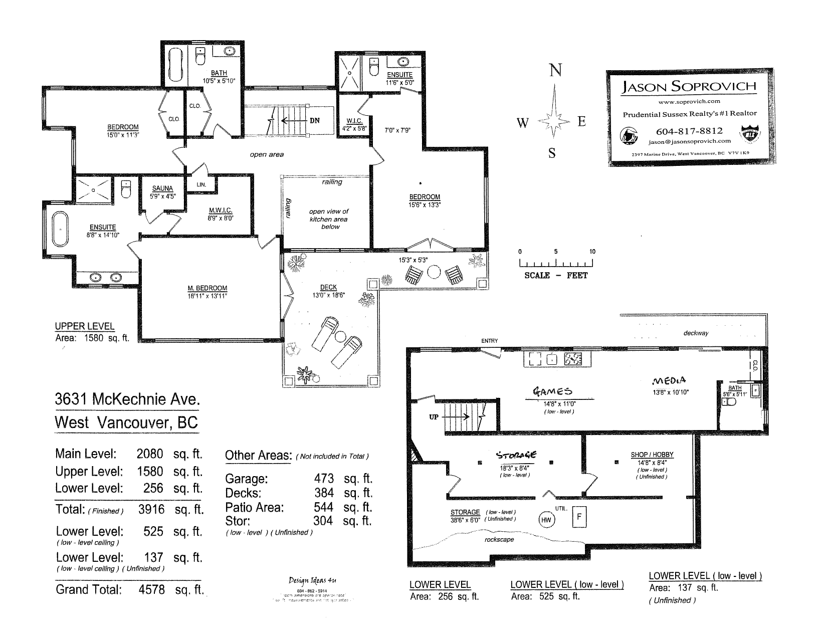
3631 McKechnie Avenue West Bay, West Vancouver, BC
Beds: 4
Baths: 6
Lot Size: 164' x 96.8'
Floor Area: 4,441 sq. ft.
Price $2,976,000

Property Description

Beds: 4
Baths: 6
Lot Size: 164' x 96.8'
Sqft:

A New Sophisticated Residence in West Bay!

A spectacular new residence located in West Vancouver’s most sought after neighbourhood – West Bay! This gorgeous custom executive-style residence features over 4,000 sq. ft. of luxurious living on 3 spacious levels on a private manicured property. Exquisitely appointed, this home offers a bright, open floorplan with exceptional quality and detail finishings throughout, miles of rich hardwood flooring and custom millwork, beautiful crown moulding, panel and ceiling detail, large entertainment areas that flow through French doors to an oasis of sundrenched patios and covered outdoor terraces overlooking manicured gardens and pleasant ocean views beyond. The upper level features a sensational master suite with sitting area and a gorgeous spa-like ensuite, 2 additional ensuited guest bedrooms and a fabulous open mezzanine overlooking the elegant living area below. The main level is sprawling and offers versatile living spaces, a breathtaking kitchen with large centre island, breakfast bar, adjacent eating area and top appliances, adjacent family room, a fantastic study with full bathroom, traditional fireplace and a beautiful central dining area. The lower level features a large media recreation room, central wet bar and additional hobby room, bathroom and storage. This breathtaking home is walking distance to Dundarave Village, beaches and schools. Simply stunning!

Skip to content